23809
wp-singular,portfolio_page-template-default,single,single-portfolio_page,postid-23809,wp-theme-stockholm,stockholm-core-2.3.2,select-theme-ver-8.10,ajax_fade,page_not_loaded,,qode_menu_,wpb-js-composer js-comp-ver-6.7.0,vc_responsive

Vila C

EN
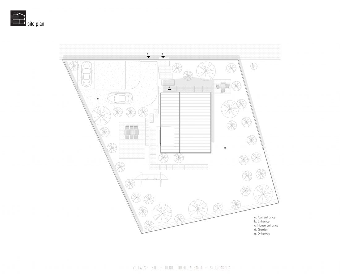
As a secondary holiday house, Villa C provides ample space in a small footprint. The house is in a village close to Tirana. It is a compact two-floor house, able to accommodate up to 8 people. The ground floor is dedicated to the common areas with the living room, dining, and kitchen, while the first floor is for the family’s bedrooms. The guest bedroom is on the ground floor to provide more privacy to the guests. This bedroom is also separated from the common areas by the stairs. Despite its small surface area, all the rooms feel big and spacious because of the large amount of natural light throughout the day. The façade consists mainly of red bricks. This material evokes the traditional concept of a house to make this temporary house more homely. The roof is double sloped to emphasize the traditional aspect of a home. The two slopes are divided, leaving room for soft natural light from above to enter the rooms. The traditional feel of the house is intertwined with smooth contemporary elements. White plaster is used for these elements, quietly disrupting the red brick in the façade. In the western façade, a white rectangular extrusion breaks the roof, focusing the view on this element. In the interior, this extrusion is translated into the dining room and the master bedroom on the first floor. The dining room is the day-to-day room that connects all the people, so we wanted to focus on this activity, making it visible from the outside too. A large door opening from the dining area makes it easier to go in the space outside. The garden surrounding the house has several functions: parking, leisure, playground, and produce. The trees provide natural shade and privacy.
AL
Si një shtëpi pushimi dytësore, Villa C ofron hapësirë ​​të bollshme në një gjurmë të vogël. Shtëpia është në një fshat afër Tiranës. Është një shtëpi kompakte dykatëshe, në gjendje të mirëpresë deri në 8 persona. Kati përdhes është i dedikuar për hapësirat e përbashkëta me dhomën e ndenjes, ngrënien dhe kuzhinën, ndërsa kati i parë është për dhomat e gjumit të familjes. Dhoma e gjumit për mysafirë është në katin e parë për të siguruar më shumë privatësi për ta. Kjo dhomë gjumi gjithashtu ndahet nga vendet e përbashkëta me shkallët. Pavarësisht sipërfaqes së vogël, të gjitha dhomat ndihen të mëdha dhe të bollshme për shkak të sasisë së madhe të dritës natyrore gjatë gjithë ditës. Fasada përbëhet kryesisht nga tulla të kuqe. Ky material evokon konceptin tradicional të një shtëpie për ta bërë këtë shtëpi të përkohshme më shtëpiake. Çatia është e pjerrët në dy anë për të theksuar aspektin tradicional të një shtëpie. Të dy anët e çatisë janë të ndara, duke lënë hapësirë ​​për dritë të butë natyrore nga lart për të hyrë në dhoma. Ndjesia tradicionale e shtëpisë është e ndërthurur me elemente të lëmuara bashkëkohore. Suvaja e bardhë përdoret për këto elemente, duke ndërprerë me qetësi tullën e kuqe në fasadë. Në fasadën perëndimore, një nxjerrje e bardhë drejtkëndëshe thyen çatinë duke përqendruar pamjen në këtë element. Në brendësi, ajo përkthehet në dhomën e ngrënies dhe dhomën e gjumit në katin e parë. Dhoma e ngrënies është dhoma e përditshme që lidh të gjithë njerëzit, kështu që ne donim të përqendroheshim në këtë aktivitet, duke e bërë atë të dukshëm edhe nga jashtë. Një hapje dere nga zona e ngrënies e bën më të lehtë kalimin në ambjentet e jashtme. Kopshti që rrethon shtëpinë ka disa funksione: parkim, kohë të lirë, shesh lojërash dhe produkte perimesh. Pemët sigurojnë hije natyrore dhe privatësi.

Location

Zall-Herr, Tirana, Albania

Year

2019

Type

Housing

Category

Housing, Living