23614
wp-singular,portfolio_page-template-default,single,single-portfolio_page,postid-23614,wp-theme-stockholm,stockholm-core-2.3.2,select-theme-ver-8.10,ajax_fade,page_not_loaded,,qode_menu_,wpb-js-composer js-comp-ver-6.7.0,vc_responsive

‘Bernardina Qerraxhi’ School

EN

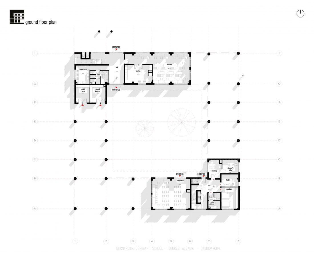
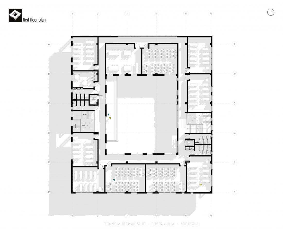
‘Bernardina Qerraxhi’ school, the professional sports national school, is located in Durrës. As a result of the earthquake on November 26, 2019, the building suffered major damage and needed to be reconstructed, following the new design standards and the provision of specific spaces for its sports character. The project includes the school building, a new gym and the dormitory space. The area offers the possibility of distributing these functions in different buildings giving the opportunity to design outdoor spaces which will serve and connect them. An important point in the design process is the combination of several spaces that can serve also the community, not just the students.

AL

Shkolla ‘Bernardina Qerraxhi’, shkolla kombëtare profesionale e sporteve, ndodhet në Durrës. Si pasojë e tërmetit të 26 Nëntor 2019, ndërtesa pësoi dëme të mëdha dhe duhet rikonstruktuar, duke ndjekur edhe standarte të reja të projektimit dhe ofrimin e hapësirave specifike për karakterin sportiv. Projekti përfshin godinën e shkollës, një palestër të re, dhe hapësira për konvikte. Zona ofron mundësinë e shpërndarjes së këtyre funksioneve në godina të ndryshme duke dhënë mundësinë për të projektuar edhe hapësira të jashtme të cilat do i shërbejnë dhe do lidhin objektet e ndara. Pikë e rëndësishme në projektim është ndërthurja e disa hapësirave që mund ti shërbejnë edhe komunitetit, jo vetëm studentëve.

Location

Durrës, Albania

Year

2020

Category

Learning, Sports