23366
wp-singular,portfolio_page-template-default,single,single-portfolio_page,postid-23366,wp-theme-stockholm,stockholm-core-2.3.2,select-theme-ver-8.10,ajax_fade,page_not_loaded,,qode_menu_,wpb-js-composer js-comp-ver-6.7.0,vc_responsive

VILLA DI

EN

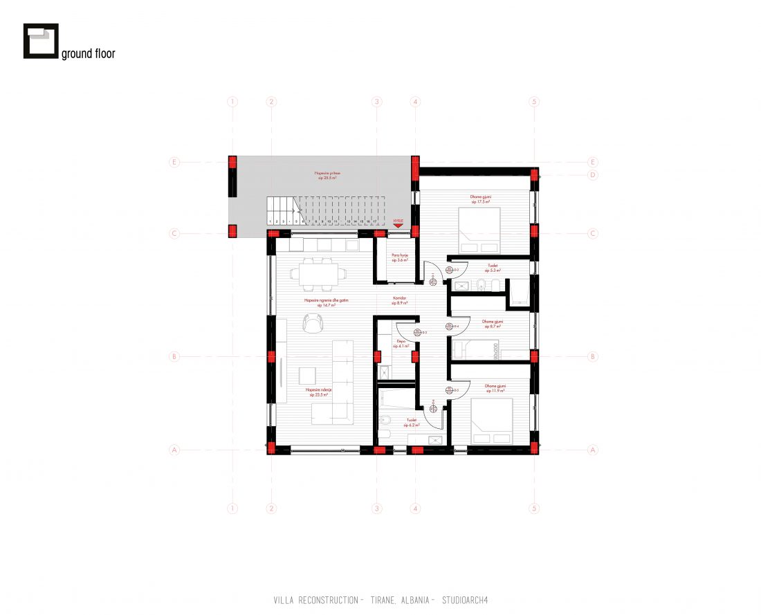
This villa is located in Surrel, in a rural context and offers open views of the natural landscape. Attention to activities is intertwined with the volumetric solution, which is realized through 2 volumes. The first volume, on the north façade, consists of a vertical staircase. Meanwhile the second volume has the other spaces (living room, bedrooms etc). Although the main volume has a heigh of just one floor, it is intended that its terrace be usable and for this the scale volume creates direct access.
All facilities have direct natural lighting, which through different dimensions of the cracks create the appropriate sensations based on the function.

AL

Kjo vilë gjendet në Surrel, në një kontekst rural dhe ofron pamje të hapura ndaj peisazhit. Vëmendja ndaj aktiviteteve ndërthuret me zgjidhjen volumetrike, e cila realizohet përmes 2 volumeve. Volumi i parë, në fasadën veriore, përbëhet nga lidhja vertikale e realizuar me shkallë. Ndërkohë volumi i dytë ka hapësirat e tjera (dhomë ndjenjeje, dhoma gjumi etj). Edhe pse volumi kryesor ka një lartësinë e një kati, është menduar që tarraca e tij të jetë e shfrytëzueshme dhe për këtë volumi i shkallës krijon akses direkt.
Të gjithë ambjentet kanë ndriçim natyral direkt, e cila me anë të përmasave të ndryshme të çarjeve krijojnë ndjësitë përkatëse në bazë të funksionit.

Type

Villa

Location

Tiranë, Albania

Year

2020

Category

Housing