26265
wp-singular,portfolio_page-template-default,single,single-portfolio_page,postid-26265,wp-theme-stockholm,stockholm-core-2.3.2,select-theme-ver-8.10,ajax_fade,page_not_loaded,,qode_menu_,wpb-js-composer js-comp-ver-6.7.0,vc_responsive

STEM RESIDENCE

EN

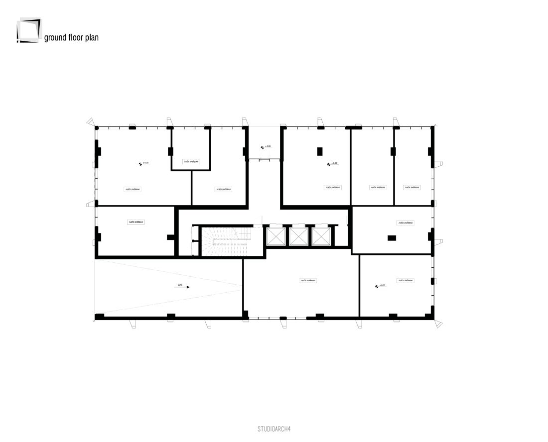
Stem Residence is a 12 story building which is located at Rruga e Barrikadave. It’s functions incude commercial, for
the ground floor, offices on the first floor, and residential for the remaining floors. The footprint of the building is a
simple rectangular shape, which remains the same accross all floors, with the element of the loggias being different
in each floor. This creates 4 typical floor typologies among the residential floor plans. Each floor contains up to 7
apartments placed around the central staircase and elevator. The most distinguishing feature of the building is its
facade, which is proposed with prefabricated elements composed in triangular shapes that create a very interesting
shadow element for the openings. Some of these elements are also proposed with integrated vases, so an altering
mosaic of greenery can be seen on the main southen and northern facade.

AL

Stem Residence eshte nje pallat 12 katesh i cili ndodhet ne Rrugen e Barrikadave. Funksionet e tij përfshijnë
komerciale në katin përdhe, zyra në katin e parë dhe banim për katet e mbetura. Gjurma e ndërtesës është një
formë e thjeshtë drejtkëndore, e cila mbetet e njëjtë në të gjitha katet, ku elementi i lozhave është i ndryshëm në
çdo kat. Kjeshtu krijohen 4 tipologji tipike katesh banimi. Çdo kat përmban deri në 7 apartamente të vendosura
rreth shkallëve qendrore dhe ashensorit. Tipari më dallues i ndërtesës është fasada e cila propozohet me elemente
parafabrikate të kompozuara në forma trekëndore që krijojnë një element hijezues shumë interesant për carjet e
objektit. Disa nga këta elementë janë propozuar edhe me vazo të integruara, kështu që në fasadën kryesore jugore
dhe veriore mund të dallohen mozaike gjelbërimi.

Type

Residential & Services

Location

Tirana, Albania

Year

2024

Category

Housing, Mixed-Functions