23393
wp-singular,portfolio_page-template-default,single,single-portfolio_page,postid-23393,wp-theme-stockholm,stockholm-core-2.3.2,select-theme-ver-8.10,ajax_fade,page_not_loaded,,qode_menu_,wpb-js-composer js-comp-ver-6.7.0,vc_responsive

‘BABË DUDË KARBUNARA’ SCHOOL

EN

‘Babë Dudë Karbunara’ is a school located in Berat, next to Boulevard ‘Republika’. The orientation of the main facade is towards the boulevard.

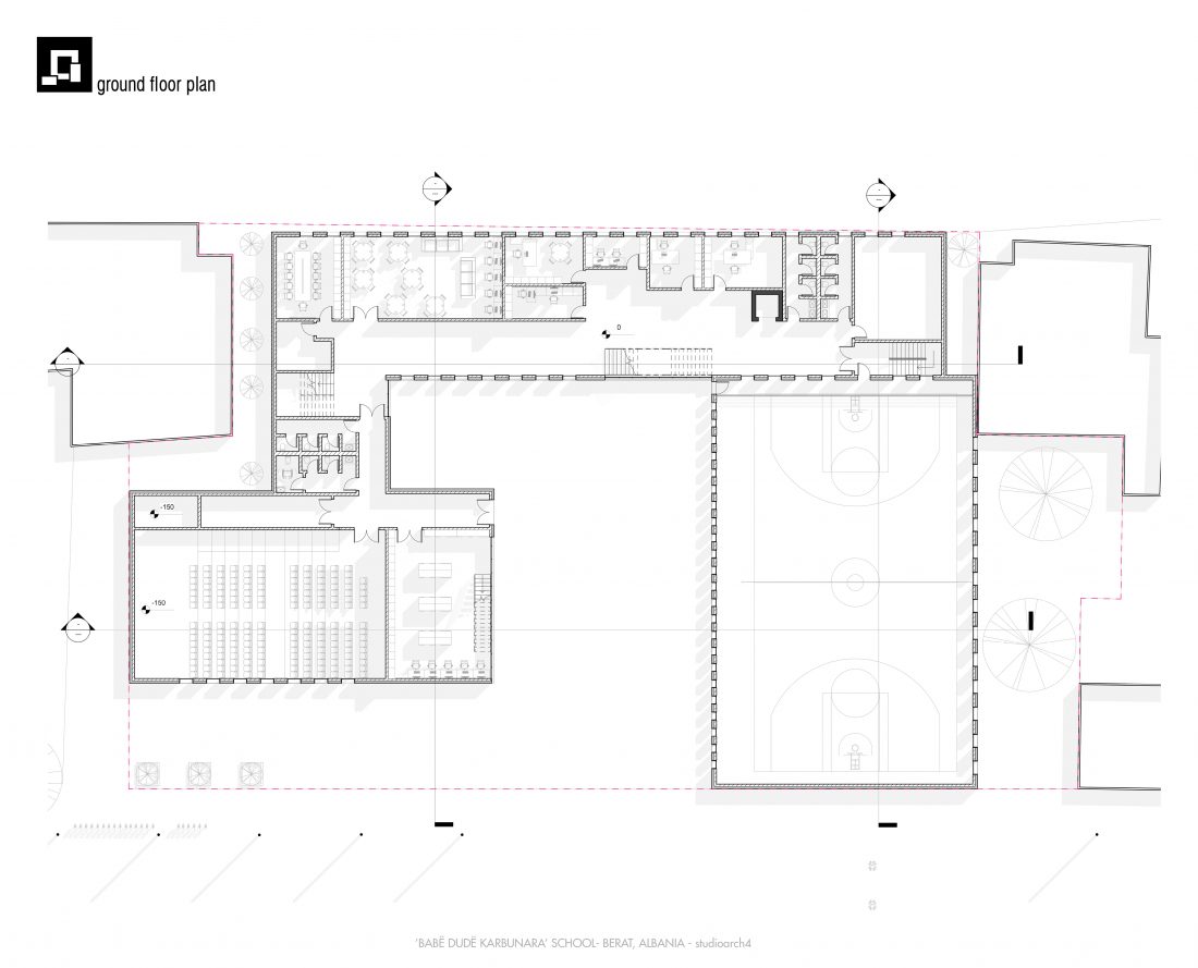
The conceptual and functional essence of this building lies in the integration of outdoor urban spaces with the school. Thus, the layout allows indipendent entrances to the gym, auditorium and library for the community to use in the afternoons. Between the boulevard and the school entrance is the inner courtyard, which is accessed from the street.

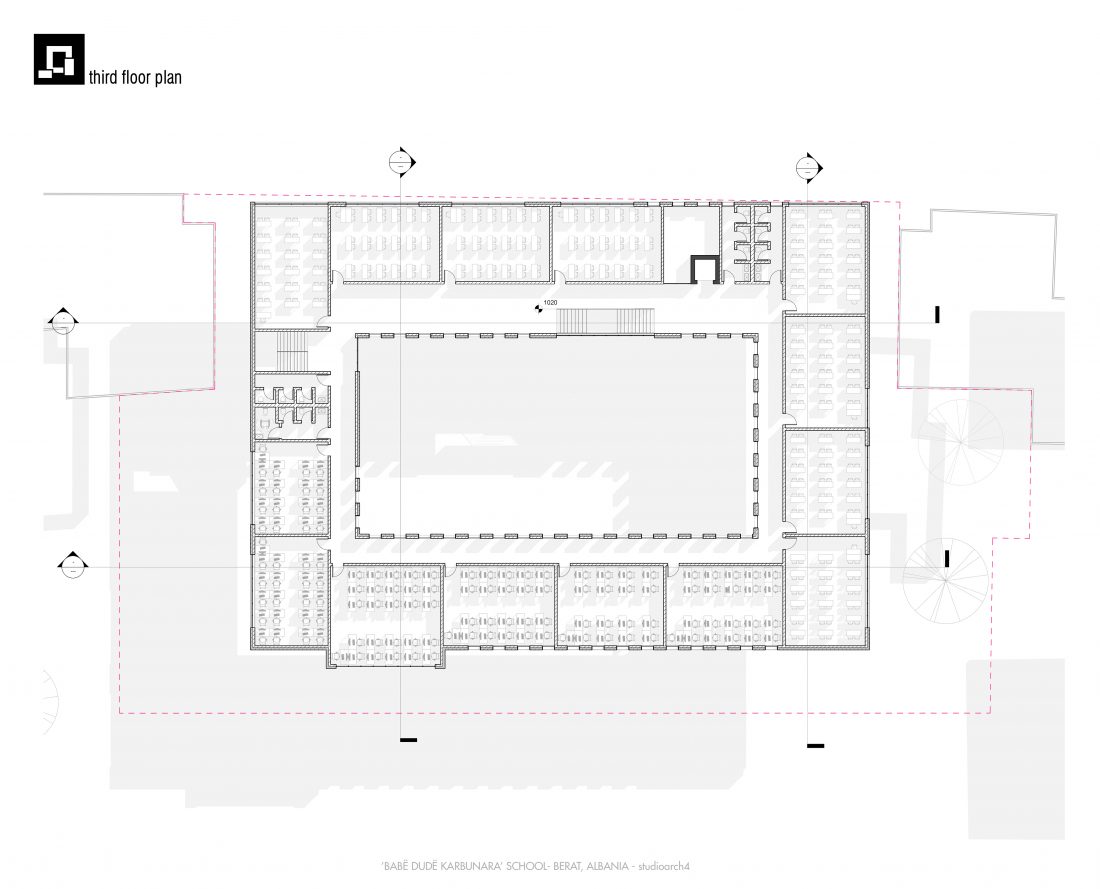
On the ground floor, are located the administrative premises of the school such as the offices of the directorate, the secretariat, a teachers’ lab and a meeting room, the health offices, as well as secondary facilities such as archives. Classes and laboratories have been distributed on the upper floors, so that they are less affected by street noise. On the classroom floors it is possible to create small semi-open spaces using the terraces of the following floors. These spaces serve as buffer zones where students can spend their free time between lessons.

AL

Gjimanzi Babë Dudë Karbunara ndodhet në Berat, në krah të Bulevardit ‘Republika’. Orientimi i fasadës kryesore është drejt bulevardit.

Thelbi konceptual dhe funksional i kësaj shkollë qëndron në integrimin e hapësirave të jashtme urbane me ato shkollore. Për këtë arsye, planimetria është zhvilluar e tillë që të lejojë hyrje të veçantë për hapësirat e palestrës, auditorit dhe bibliotekës për komunitetin që të mund t’i përdorë gjatë pasditeve. Midis bulevardit dhe hyrjes së shkollës ndodhet oborri i brendshëm, i cili akesohet nga rruga.

Në katin përdhe, janë pozicionuar hapësirat administrative të shkollës si zyrat e drejtorisë, sekretarisë, një sallë mësuesish dhe një sallë mbledhjeje, zyrat e shëndetit, si edhe ambjente dytësore si arkiva. Në katet e mësiperme është bërë shpërndarja e klasave dhe laboratorëve, që të jenë më pak të ndikuara nga zhurmat e rrugës. Në katet e klasave është krijuar mundësia për të krijuar hapësira të vogla gjysëm të hapura duke shfrytëzuar tarracat e kateve të mëposhtëm. Këto hapësira shërbejnë si zona buffer ku nxënësit mund të kalojnë kohën e lirë ndërmjet orëve të mësimit.

Type

Educational

Location

Berat, Albania

Year

2019

Category

Learning