22831
wp-singular,portfolio_page-template-default,single,single-portfolio_page,postid-22831,wp-theme-stockholm,stockholm-core-2.3.2,select-theme-ver-8.10,ajax_fade,page_not_loaded,,qode_menu_,wpb-js-composer js-comp-ver-6.7.0,vc_responsive

Tirana West Park

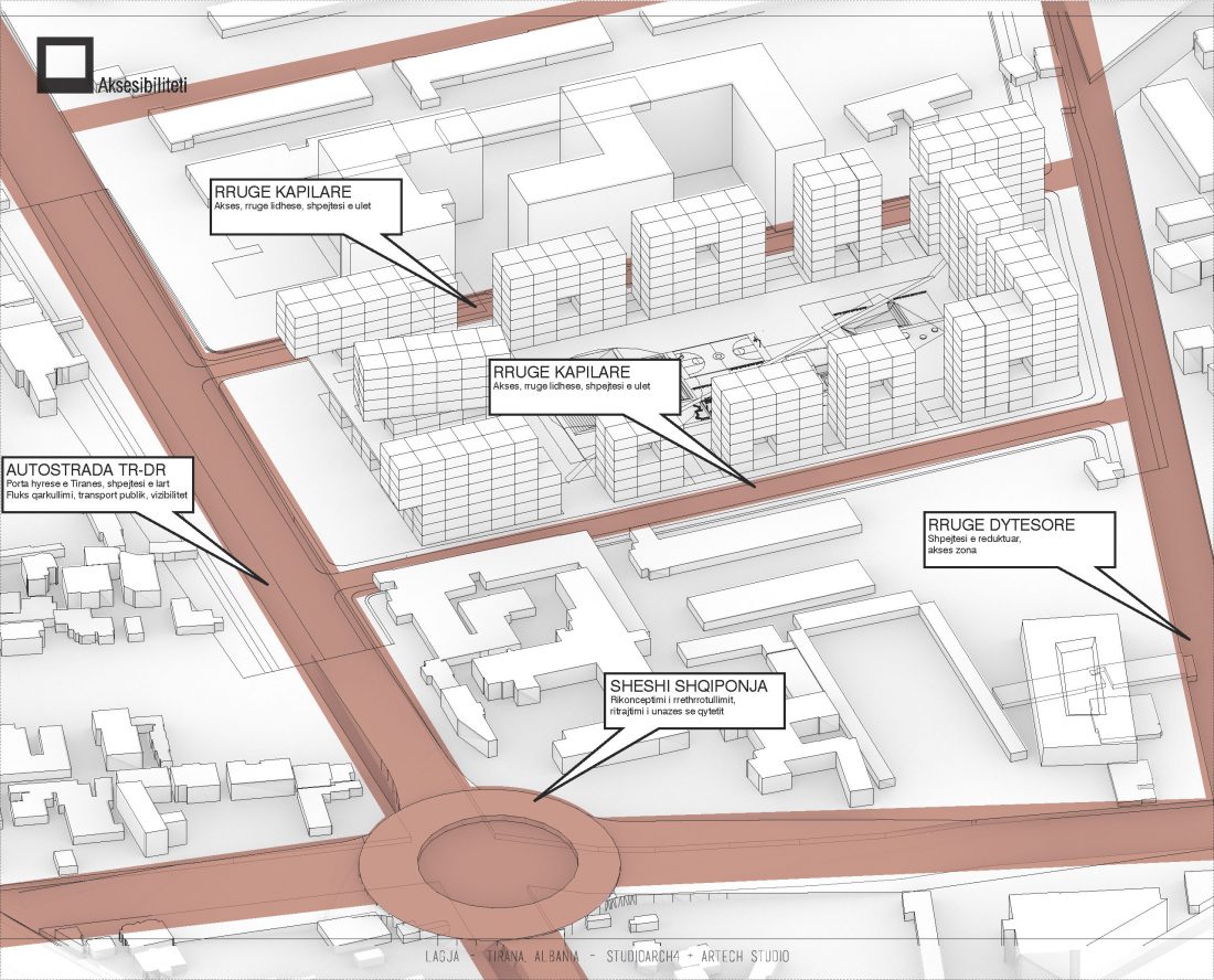
The project takes place in a new polarity of the city of Tirana. A strategic area and with very good access but not exploiting its potential yet. This project idea
aims to create a neighborhood, with all the qualities that one should have. A neighborhood which is attractive to the city through the businesses in it, but also a neighborhood for its quality of life.

A new neighborhood finds it difficult to create the urban mix and ingredients. This project is about different uses rather than monostructure, it is about heterogeneous groups that will use it rather than
homogeneity, has to do with the diversity of functions, structures in it, spaces for the community etc, because in the end the residents and future users will be different. The size of the complex gives us the opportunity to create a neighborhood that is adapted,changed, conceived such that it is not necessary to choose social groups. economic or primary functions, but integrates them all together for what will be a polarity, a new identity, a new neighborhood of Tirana.

Location

Tirana

Collaborators

Artech

Year

2018

Status

Project Idea

Category

Business, Housing, Living, Urban Design, Working