26510
wp-singular,portfolio_page-template-default,single,single-portfolio_page,postid-26510,wp-theme-stockholm,stockholm-core-2.3.2,select-theme-ver-8.10,ajax_fade,page_not_loaded,,qode_menu_,wpb-js-composer js-comp-ver-6.7.0,vc_responsive

MEDICAL CLINIC

EN

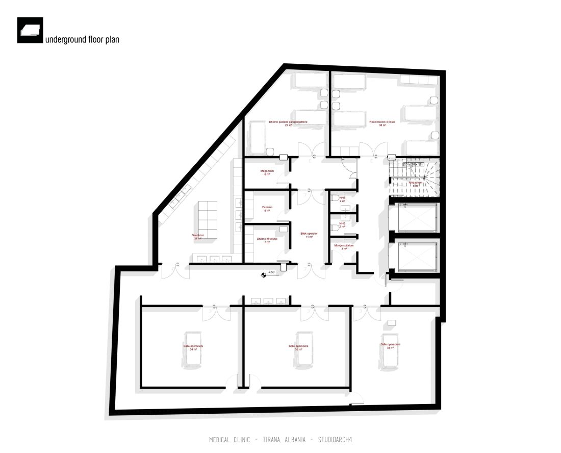
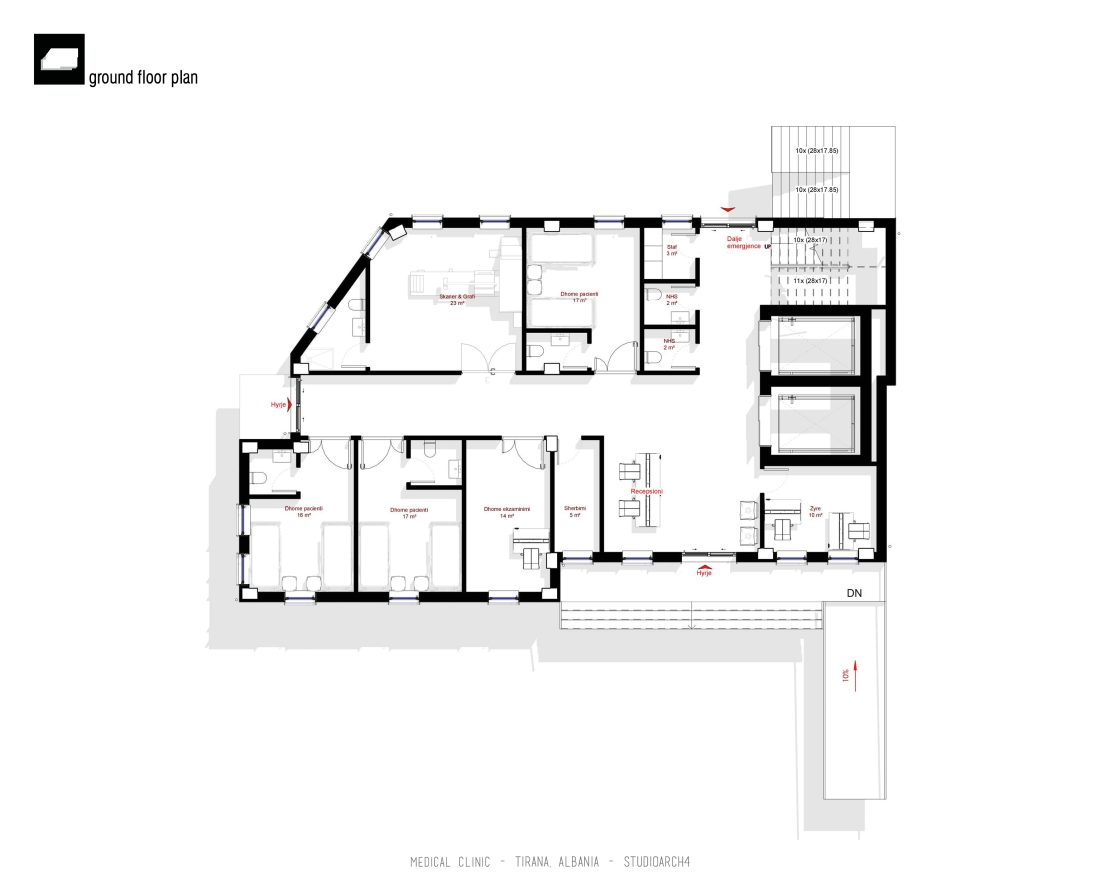
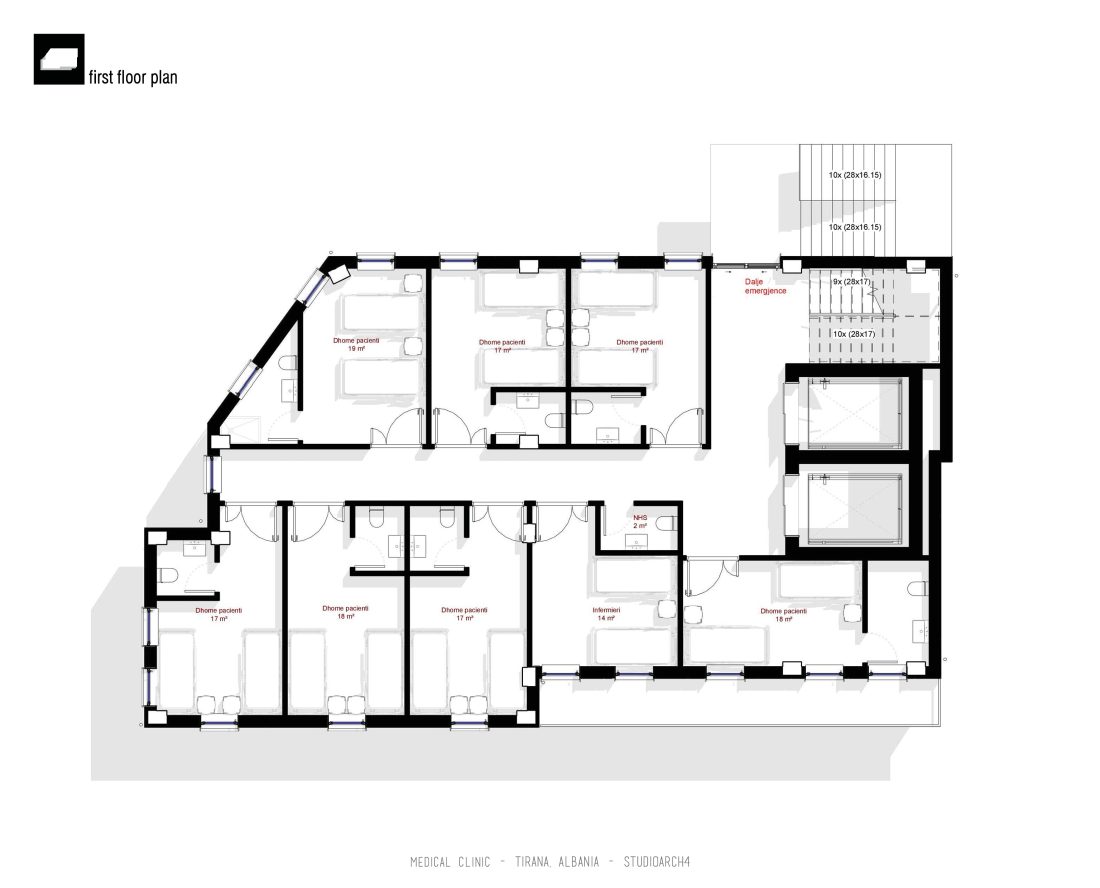
The proposed building is located on “Kristaq Mema” street and has 3 floors above ground and an underground. On
the floors above ground are proposed the reception, rooms for patients, examination rooms, infirmary and area for
scanners, while on the underground floors are proposed operating rooms, resuscitation, preparatory rooms, as well
as other technical areas. The building is completely closed from the north-east and the windows in the other facades
respect the urban conditions. The volume of this object is regular and the glass surfaces on the main facade create
a very interesting relationship between the opaque and transparent space, as well as a special visual relationship
inside-outside. The object has a roof, which makes it integrate with the objects of the area in which it is located.
The building has a clean minimalist facade, which is realized with thermal insulation, through which vertical and
horizontal joints and beige plaster are realized. Also, the windows are framed with metal profiles, which emphasize
the verticality of the object. The presence of windows is very important. They are present on the south side of the
building, enabling the maximum benefit of lighting and solarization.

AL

Objekti i propozuar ndodhet në rrugën “Kristaq Mema” dhe ka 3 kate mbi tokë e një nëntokë. Në katet mbi
tokë janë propozuar recepsioni, dhoma për pacientët, dhoma ekzaminimi, infermieri, ambjent për skaner e
grafi, ndërsa në katet nëntokë janë propozuar sallat e operacionit, reanimacioni, salla parapërgatitore, si dhe
ambjente të tjera teknike. Objekti është i mbyllur tërësisht nga veri-lindja dhe carjet në fasadat e tjera respektojnë
kondicionet urbane. Fasada kryesore e volumit është e orientuar drejt jugut për të përfituar diellëzim maksimal.
Volumi i këtij objekti është i rregullt dhe sipërfaqet e xhamit në fasadën kryesore krijojnë një raport mjaft interesant
mes hapësirës opake dhe transparente, si dhe një marrëdhënie të vecantë vizive brenda-jashtë. Objekti ka çati, e
cila e bën të integrohet me objektet e zonës në të cilën ndodhet.
Objekti ka një fasadë të pastër minimaliste, e cila është realizuar me termoizolim, përmes të cilit realizohen fuga
vertikale e horizontale dhe grafiato bezhë. Gjithashtu vetratat janë kornizuar me profile metalike, të cilat theksojnë
vertikalitetin e objektit. Prania e vetratave është shumë e rëndësishme. Ato janë të pranishme në faqen jugore të
objektit, duke mundësuar përfitimin maksimal të ndricimit e diellëzimit.

Type

Medical Clinic

Location

Tirana, Albania

Year

2024

Category

Business