22467
wp-singular,portfolio_page-template-default,single,single-portfolio_page,postid-22467,wp-theme-stockholm,stockholm-core-2.3.2,select-theme-ver-8.10,ajax_fade,page_not_loaded,,qode_menu_,wpb-js-composer js-comp-ver-6.7.0,vc_responsive

CENTRAL COFFEE

EN

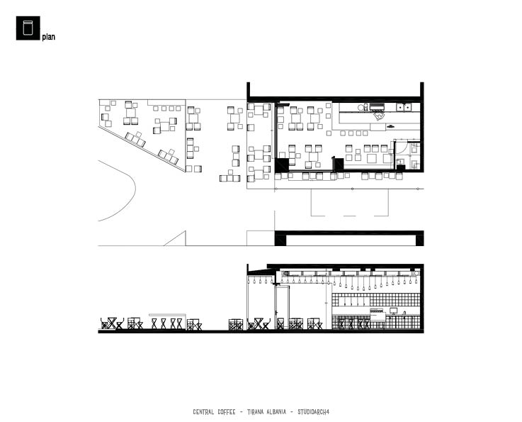
This is an interior design project for a coffee shop. The place is compact with a regular rectangular floor plan and the entrance on one of the small sides. The counter and the toilet are positioned in the back of the area while the sitting area is positioned in the front next to the glass façade. This space is only lit by the one main façade facing the main road.
The interior adopts an industrial look with black steel. The main feature of this shop is the ceiling with its suspended elements. The entire area of the ceiling is covered in suspended translucent jars dropping at different levels from above. This feature continues on the exterior as well.

AL
Ky eshte nje projekt interieri per nje bar-kafe ku mund te porositesh ne dore ose te ulesh. Ambienti eshte i vogel dhe kompakt dhe ka nje planimetri te thjeshte drejtkendore me hyrjen dhe vetraten ne brinjen me te shkurter. Pjesa e banakut dhe e tualetit eshte e pozicionuar ne pjesen me fundore te hapesires ndersa pjesa e uljes eshte e vendosur ne afersi te vetrates. Hapesira ndricohet natyralisht nga kjo vetrate kryesore.
Interieri merr nje karakter industrial ku eshte perdorur shume hekuri i zi. Elementi kryesor ne kete dizajn eshte tavani me elemente te varur. Gjithe siperfaqja e tavanit eshte e veshur me kavanoze te varur ne tuba celiku te holle ne lartesi te ndryshme. Ky element vazhdon si brenda dhe ne hapesiren jashte lokalit.

Type

Café

Year

2014

Location

Tirana, Albania

Category

Business, Interior