25821
wp-singular,portfolio_page-template-default,single,single-portfolio_page,postid-25821,wp-theme-stockholm,stockholm-core-2.3.2,select-theme-ver-8.10,ajax_fade,page_not_loaded,smooth_scroll,no_animation_on_touch,,qode_menu_,wpb-js-composer js-comp-ver-6.7.0,vc_responsive

Residential Building Materia

EN

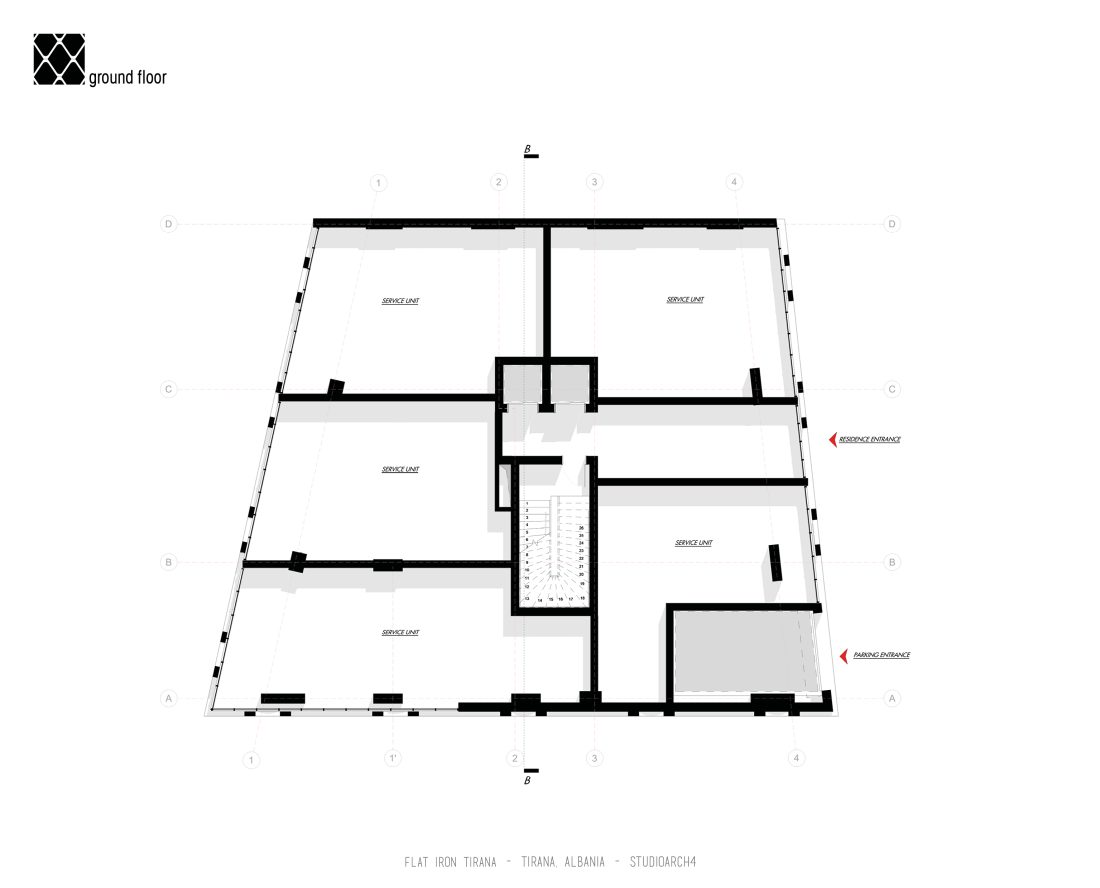
Materia Residential Building is a 12 story building located along the Transbalkan street in Vlore, Albania. The ground floor has
a bigger height and is dedicated to services and office spaces for the building. Each of the floors has 6 apartments of different
typologies. This pattern changes only on the last floor of the building which had a different and smaller footprint and is composed
for one apartment only. The composition of the floors is distributed by having the staircase and the elevator placed as a block
in the center of the plan, and apartments surrounding it.
The most distinguishing element of the building is certainly its facade. The facade is made up of prefabricated concrete elements
that are composed in a triangular composition, forming a net-like pattern that connects all three facades of the building and
surrounds it’s whole perimeter. Each apartment has it’s own balconies that are either facing the eastern or the western side of
the building. The balconies connect with each other on a continuous manner, having only a small partition which separated them.

AL

Ndërtesa Rezidenciale Materia është një ndërtesë 12 katëshe e vendosur përgjatë rrugës Transballkanike në Vlorë, Shqipëri.
Kati perdhe ka nje lartesi me te madhe dhe eshte i dedikuar per sherbime dhe ambjente zyrash per pallatin. Secili kate ka
nga 6 apartamente te tipologjive te ndryshme. Ky model ndryshon vetëm në katin e fundit të pallatit i cili kishte një gjurmë të
ndryshme dhe më të vogël dhe përmban vetëm një apartament. Përbërja e kateve shpërndahet duke vendosur si bllok në qendër
të planimetrisë shkallët dhe ashensorin dhe apartamentet që e rrethojnë atë.
Elementi më dallues i ndërtesës është padyshim fasada e saj. Fasada përbëhet nga elementë të parafabrikuar të betonit, të
vendosur ne menyre trekëndore, duke formuar një model në formë rrjete që lidh të tre fasadat e ndërtesës dhe rrethon të gjithë
perimetrin e saj. Secili apartament ka ballkonet e tij që kanë pamje nga ana lindore ose perëndimore e ndërtesës. Balonet lidhen
me njëri-tjetrin në mënyrë të vazhdueshme, duke pasur vetëm një ndarje të vogël që i vecon.

Type

Residential & Services

Location

Vlore, Albania

Year

2023

Category

Housing, Mixed-Functions